Neubau für Privat 1
Aufgabenstellung:
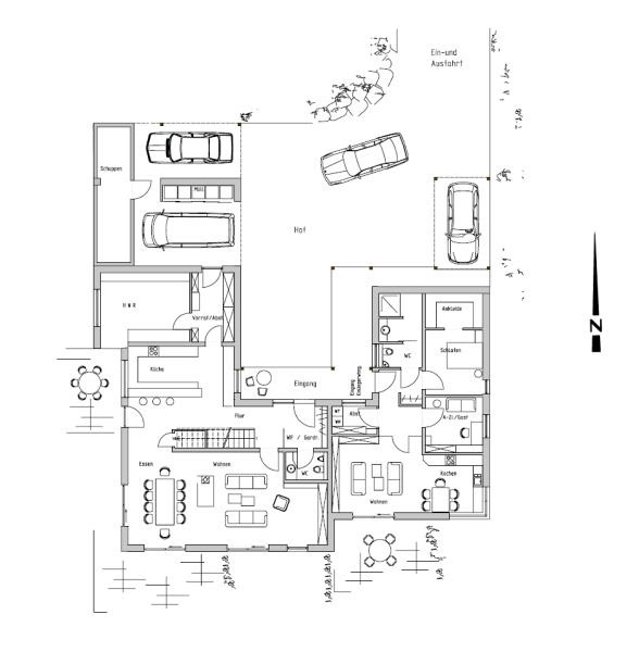
Errichtung eines Einfamilienwohnhauses mit Einliegerwohnung als Elternwohnsitz zum „Mehrgenerationen-Wohnen“. Gründungsbesonderheiten des Bauplatzes im Bereich eines alten Bachlaufs. Verwendung von Erdwärme als regenerativer Energieträger.
Entwurfskonzeptionen:
Kubische Komposition der Baukörper in der Tradition der Moderne. Strenge Ausrichtung der Fassadenöffnungen unter Berücksichtigung der besonderen Blickbeziehungen. Gliederung der Baumassen durch Form, Farbe und Verschneidungen.
Konstruktion und Material:
Nicht unterkellertes Gebäude in monolithischer Massivbauweise. Klassische Putzfassade mit farbiger Gliederung der Baumassen. Horizontale und Vertikale Gliederung des Baukörpers durch z.B. aussenliegende Verschattung mit Sonnenschutzlamellen. Verwendung hochwertiger und heimischer Bauprodukte mit regionalem Bezug zur Gewährleistung einer nachhaltigen Bauweise.










